Проект каркасного дома Коралл
Описание проекта
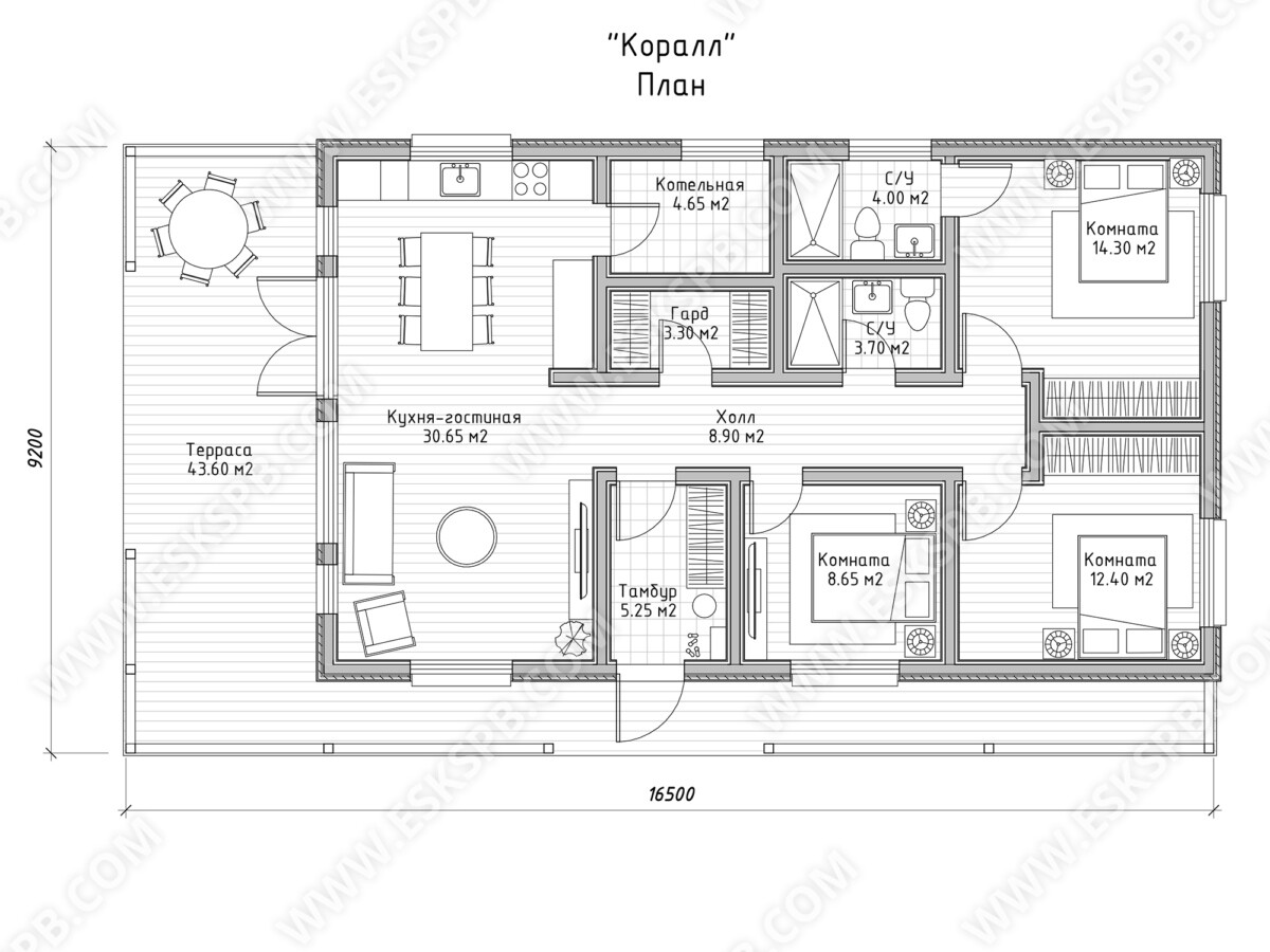
Проект одноэтажного каркасного дома Корал, рассчитан на круглогодичное проживание семьи 3-4 человек, с большой кухней-гостиной, просторными комнатами, террасой, крыльцом, тамбуром, а также сауной и санузлом. Этот каркасный одноэтажный дом по ключ идеально подойдет для тех, кто ценит комфорт и свободное пространство. Тщательно продуманная планировка даст возможность жильцам наслаждаться жизнью на природе. Построить одноэтажный каркасный дом под ключ- это то что мы предлагаем каждому клиенту.
Варианты комплектаций
|
Комплектации |
Закрытый контур 6 255 000 руб. | Теплый контур 6 950 000 руб. | С отделкой 7 645 000 руб. |
|---|---|---|---|
| В СТОИМОСТЬ ВКЛЮЧЕНЫ | |||
| Перепланировка дома | |||
| Архитектурное решение и рабочая документация (КР) | |||
| Сборка | |||
| Доставка до 50 км от КАД | |||
| Разгрузка (не более 20 м до места складирования) | |||
| Технический надзор на каждом этапе строительства | |||
| ОБВЯЗКА ОСНОВАНИЯ | |||
| Пакет из сухой строганной доски 45х145мм | |||
| СИЛОВОЙ КАРКАС КАПИТАЛЬНЫХ СТЕН | |||
| Вертикальные стойки – сухая строганная доска сечением 45x145 мм | |||
| Укосины – сухая строганная доска сечением 20x145 мм | |||
| Обвязочный верхний пояс – сухая строганная доска сечением 45x145 мм | |||
| Прогоны – клееный брус 140х220 мм / LVL – конструкция | |||
| Опорные столбы – клееный брус 140x140 мм | |||
| СИЛОВОЙ КАРКАС ВНУТРЕННИХ ПЕРЕГОРОДОК | |||
| Вертикальные стойки – сухая строганная доска сечением 40x95/145 мм | |||
| Укосины – сухая строганная доска сечением 20x145 мм | |||
| Обвязочный верхний пояс – сухая строганная доска сечением 40x95/145 мм | |||
| Ригель несущих перегородок – сухая строганная доска сечением 45x145 мм | |||
| ПОЛ 1-ОГО ЭТАЖА | |||
| Балки– сухая строганная доска сечением 45x145 мм | |||
| СТРОПИЛЬНАЯ СИСТЕМА | |||
| Стропильные ноги – сухая строганная доска сечением 45x145 мм | |||
| Стяжка – сухая строганная доска сечением 45x145 мм | |||
| Коньковая доска – сухая строганная доска сечением 45x145 мм | |||
| КРОВЛЯ | |||
| Покрытие – металлочерепица сталь 0,5 мм | |||
| Обрешетка – сухая строганная доска сечением 20x95 мм | |||
| Контробрешетка – вентиляционный зазор – сухой строганный брусок 45x45 мм (уплотнительная лента под бруском) | |||
| Диффузионная мембрана FINKA POWER 180 (нахлесты проклеиваются скотчем) | |||
| НАРУЖНАЯ ОТДЕЛКА | |||
| Сухая имитация бруса 21х196 мм, Карельский профиль с улучшенной характеристикой замка шип-паз, класс АБ | |||
| Гидроветрозащита – Rockwool ветро-влагостойкая защита для наружных стен | |||
| Обрешетка – вентиляционный зазор – сухой строганный брусок сечением 45x45 мм | |||
| Подзоры, наличники, углы- сухой строганный пиломатериал | |||
| ОКНА | |||
| Профиль VEKA SoftLine, 70 мм, двухкамерный стеклопакет с аргоном и энергосбережением; цвет белый; Форнитура Maco Multi Matic; поворотнооткидные; с отливами и подоконниками; полный комплект лент (ВУЛ, ПСУЛ, ПУЛ) | |||
| ДВЕРИ | |||
| Входная – металлическая утепленная Райтвер Премьер с терморазрывом | |||
| ЧЕРНОВОЙ ПОЛ | |||
| Сухая строганная доска сечением 20x95 мм | |||
| Сетка металлическая, ячейка 0,5х0,5 мм (защита от грызунов) | |||
| Гидроветрозащита – Rockwool ветро-влагостойкая защита для цокольного перекрытия | |||
| НАСТИЛ ПОЛОВ | |||
| Влагостойкая ДСП шпунтованная плита QuickDeck Professional 22 мм | |||
| Обрешетка – сухая строганная доска сечением 20x95 мм | |||
| УТЕПЛЕНИЕ | |||
| Капитальные стены – 150 мм плитный базальтовый утеплитель Rockwool ЛАЙТ БАТТС | |||
| Пол 1-ого этажа – 150 мм плитный базальтовый утеплитель Rockwool ЛАЙТ БАТТС | |||
| Перегородки – 100 мм плитный базальтовый утеплитель Rockwool ЛАЙТ БАТТС | |||
| Потолок – 150 мм плитный базальтовый утеплитель Rockwool ЛАЙТ БАТТС | |||
| Пароизоляция – FINKA Premium Plus 200 с проклейкой швов скотчем Finka Flexy Tape- наружный контур | |||
| Обеспыливающая мембрана Finka Dedusting- перегородки | |||
| ВНУТРЕННЯЯ ОТДЕЛКА, КОМБИНИРОВАННАЯ | |||
| Сухая имитация бруса 20х145 мм, Карельский профиль с улучшенной характеристикой замка шип-паз, класс АБ- стены во всем доме | |||
| Сухая панель хвоя "Штиль" 15x121 мм, класс АБ – потолки и скаты | |||
| Обрешетка –сухой строганный брусок сечением 45x45 мм- вентиляционный зазор | |||
| Гипсокартон влагостойкий Knauf по металлическому каркасу – стены санузлов | |||
| Сухая строганная доска сечением 20x145 мм, уголок 50х50мм- отделка оконных откосов | |||
| АНТИСЕПТИРОВАНИЕ | |||
| Neomid 450 – обвязка, лаги пола, черновой пол | |||
| КРЕПЕЖ | |||
| Болты, саморезы оцинкованные EUROTEC для наружной отделки, саморезы по дереву, пластины оцинкованные, уголки оцинкованные, гвозди ершенные, гвозди, финишные гвозди | |||
|
Стоимость
|
6 255 000 руб.
|
6 950 000 руб.
|
7 645 000 руб.
|
Варианты фундаментов
Сваи с оголовком: длина-3 м, диаметр-108 мм, без учета швеллера и профтрубы. В монтаж входит завинчивание сваи, подрезка в уровень, заливка цем/песч раствором, приваривание оголовка. Доставка фундамента и пробное бурение оплачивается отдельно.
Стоимость указана с работой и материалом.
Сваи с оголовком: длина 3 м, сечение 150х150 мм. В монтаж входит забивка сваи сваебойной машиной, подрезка в уровень, монтаж оголовка. Доставка фундамента и пробное бурение оплачивается отдельно.
Стоимость указана с работой и материалом.
Плита толщиной 200 мм; выемка и подготовка грунта; песчаная подушка 300 мм; щебневая подушка 120мм; разделение каждого слоя геотекстилем; трамбовка с поливкой; закладные под коммуникации гидроизоляция; выставление опалубки; утепление 50 мм; двойное армирование, d12 мм, ячейка 250 мм; бетон В25 М350; приемка бетона.
Стоимость указана с работой и материалом.
Инженерный пакет
Скрытый монтаж электропроводов по точкам кабелем ВВГнг в гофре из расчета не более 5 (пяти) точек на помещение в среднем. Примечание: терраса 3 точки, кухня-гостиная (единое помещение) 10 точек; неиспользованные точки можно переносить/добавлять в другое помещение. Сечение кабелей: 3,0x2,5 - розетки; 3,0x1,5 - выключатели; 3,0x4,0 - силовые.
Стоимость указана с работой и материалом.
Установка электрического щита, наполнение щита автоматическими выключателями марка IEK. УЗО общедомовое противопожарное.
Стоимость указана с работой и материалом.
Разводка труб водоснабжения (полипропилен) марки Valtek d20 по точкам открытая. Разводка канализационных (фановых) труб марки Ostendorf по точкам, соединение под домом в цоколе.
Стоимость указана с работой и материалом.
Монтаж высокоэффективной станции глубокой биомеханической очистки хозяйственно-бытовых сточных вод ZORDE 4.
Стоимость указана с работой и материалом.
Приточно-вытяжная система вентиляции. Приток - клапана инфильтрации воздуха КИВ-125; отток - вентиляционные выходы Vilpe (Финляндия); воздуховод пластиковый; воздуховод тепло-звукоизоляционный Sanodec; гофра алюминиевая; продухи чердачного помещения; диффузор общедомовой.
Стоимость указана с работой и материалом.
Электрический котел Эван 12 кВт; коллекторная группа; группа безопасности; циркуляционный насос; расширительный бак; воздушный клапан. Установка водорозеток; разводка труб из сшитого полиэтилена; монтаж радиаторов; опрессовка и испытание системы критическим давлением.
Стоимость указана с работой и материалом.




Спецпредложения
Добавить комментарий